Ufficio | piazza Generale Armando Diaz, Monza
| Numero di riferimento | 193528485 |
| Zona | San Biagio, San Carlo, Stazione |
| Tipologia di contratto | Vendita |
| Prezzo di vendita | 340.000 € |
| Spese condominiali | 670 € |
| Tipologia immobile | Ufficio |
| Anno costruzione | 1970 |
| Piani totali | 1 |
| Piano dell'immobile | 6 |
| Classe energetica | G |
| I.P.E. | 270.03 kWh/m2a |
| Superficie | 146 m2 |
| Numero locali | 5 |
| Numero camere | 5 |
| Numero bagni | 1 |
| Impianto condizionatore | Sì |
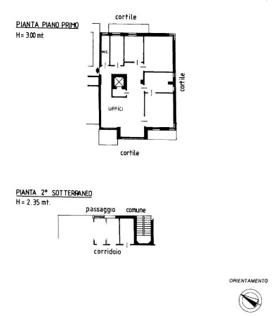
MONZA - SAN CARLO: in uno stabile signorile in PIAZZA DIAZ 1, ROYAL IMMOBILI & INVESTIMENTI propone un elegante ufficio di 146 mq. L'immobile è inserito al primo piano di un contesto condominiale degli anni '70 dotato di portineria full time e doppio ascensore. Si compone di doppio ingresso, zona accoglienza/reception, 5 vani ad uso ufficio, 3 balconi ed un bagno. Internamente è in buono stato manutentivo con pavimenti in legno posato su marmo, serramenti PVC - doppio vetri, impianto di aria condizionata, tapparelle elettriche, porta blindata e doppio ingresso. Completa la proprietà una cantina di pertinenza. Ideale per studi professionali e/o di rappresentanza, studi medici o uffici. LIBERO SUBITO.