Nascondi dettagli

Appartamento | via Libertà, Biassono

via Libertà Biassono

180.000,00
2 camere
1 bagno
70 M2

Appartamento | via Libertà, Biassono

via Libertà Biassono

180.000,00
2 camere
1 bagno
70 M2

Descrizione

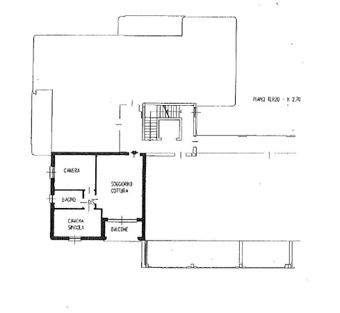
BIASSONO: in contesto condominiale medio signorile del 1998, ROYAL IMMOBILI & INVESTIMENTI, propone in vendita un ottimo trilocale di 70 mq. L'immobile è inserito al terzo piano di un condominio dotato di ascensore. Si compone di ingresso diretto su zona living con cucina a vista ed affaccio su comodo terrazzino, disimpegno notte con camera matrimoniale, camera singola ampia ed un bagno finestrato con vasca. Internamente si presenta in OTTIMO STATO di manutenzione, con dotazioni interessanti come serramenti in alluminio con vetrocamera e tapparelle a protezione, impianto di aria condizionata. Completa la proprietà un BOX DOPPIO in larghezza di 28 mq al prezzo di €19.000. Rappresenta la soluzione ideale per coloro che vogliono vivere in bel contesto condominiale, vicino ai principali servizi e a 300 mt dal centro di Biassono. LIBERO AL ROGITO (5 MESI).

Dettagli

Tipologia contratto
Vendita
Tipologia proprietà
Appartamento
Anno di costruzione
1998
Superficie
70 m2
Camere
2
Bagni
1
Piano
3 di 4
Classe energetica e I.P.E.
F, 156.30