Appartamento | piazza Generale Armando Diaz, Monza
| Numero di riferimento | 193528821 |
| Zona | San Biagio, San Carlo, Stazione |
| Tipologia di contratto | Vendita |
| Prezzo di vendita | 340.000 € |
| Spese condominiali | 670 € |
| Tipologia immobile | Quadrilocale|Appartamento |
| Anno costruzione | 1970 |
| Piani totali | 6 |
| Piano dell'immobile | 1 |
| Classe energetica | G |
| I.P.E. | 270.03 kWh/m2a |
| Superficie | 146 m2 |
| Numero locali | 4 |
| Numero camere | 3 |
| Numero bagni | 2 |
| Cucina | Abitabile |
| Impianto condizionatore | Sì |
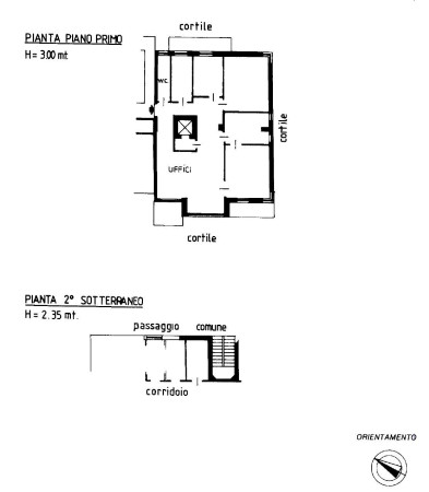
MONZA - SAN CARLO: in uno stabile signorile in PIAZZA DIAZ 1, ROYAL IMMOBILI & INVESTIMENTI propone un elegante immobile uso ufficio di 146 mq trasformabile in un QUADRILOCALE con doppi servizi. L'immobile è inserito al primo piano di un contesto condominiale degli anni '70 dotato di portineria full time e doppio ascensore. Con una ristrutturazione si può ottenere un immobile con doppio ingresso, grande cucina abitabile con balcone, salone con terrazzino, tre camere da letto (di cui 2 matrimoniali) e doppi servizi entrambi finestrati. Internamente al momento presenta pavimenti in legno posato su marmo, serramenti PVC - doppio vetri, impianto di aria condizionata, tapparelle elettriche e porta blindata. Completa la proprietà una cantina di pertinenza. Rappresenta la soluzione ideale per chi cerca un immobile di ampia metratura ed ampi spazi, molto luminoso con tripla esposizione, ampiamente personalizzabile ed in un quartiere privilegiato per la vicinanza alla stazione FS ed al centro storico. LIBERO SUBITO.